Area of cut out regular Surfaces and Irregular surfaces
Workshop Calculation and Science, Module-2
Area of cut out regular Surfaces and Irregular surfaces
⭕️ Show all Answers
Q1: Which formula is suitable for the area of a circle whose diameter is (d)?
- \(\frac{\pi d^2}{4}\)
- \(\pi r\)
- \(2\pi r\)
- \(\pi d\)
Q2: What is the circumference of a semi circle?
- \(\pi r + 2r\)
- \(4\pi d\)
- \(2\pi r^2\)
- \(4\pi d^2\)
Q3: What is the area of irregular shape by Simpson's rule?
- \(\frac{h}{3} \left[y_1 + y_n + 4(y_2 + y_4 + y_6) + 2(y_3 + y_5 + y_7)\right]\)
- \(2h [y_1 + y_n]\)
- \(3h [y_2 + y_4 + y_6]\)
- \(2h [y_1 + y_n + (y_2 + y_3)]\)
Q4: What is the name called biggest chord of the circle?
- Arc
- Diameter
- Radius
- Diagonal
Q5: What is the formula for circumference of a circle?
- \(\pi r^2\)
- \(4\pi d^2\)
- \(2 \pi r\)
- \(2 \pi r^2\)
Q6: What is the formula for area of the semi circle?
- \(\pi r^2\)
- \(2 \pi r\)
- \(\pi r\)
- \(\frac{\pi r^2}{2}\)
Q7: What is the formula for area of the circle?
- \(2\pi r^2\)
- \(\pi r^2\)
- \(2 \pi r\)
- \(2 \pi d\)
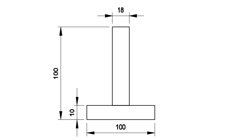
Q8: What is the area of the irregular surface?
- 1400 mm²
- 1450 mm²
- 1500 mm²
- 1200 mm²
Q9: What is the area of the shaded portion, Equilateral Triangle side is 6cm and circle radius is 1.5cm?
- 8.52 cm²
- 12.75 cm³
- 9.5 cm³
- 12.25 cm²
Q10: What is the area of the irregular surfaces?
- 2500 mm²
- 3544 mm²
- 3250 mm²
- 3444 mm²
Q11: What is the area of the irregular surfaces?
- 4800 mm²
- 4820 mm²
- 4830 mm²
- 4843 mm²
Q12: What is the area of irregular surfaces?
- 1350 mm²
- 1175 mm²
- 1150 mm²
- 1250 mm²
Q13: What is the length of arc of a sector, whose perimeter is 64.8cm and radius is 12.4 cm?
- 40 cm
- 45 cm
- 40.8 cm
- 42 cm
Q14: What is the length of arc of the sector whose radius is 15 cm and the intended angle is 30°?
- 7.85 cm
- 7.25 cm
- 6.75 cm
- 6.85 cm
Q15: What is the area of the sector, if the diameter is 12 cm and the angle is 60°?
- 18.0 cm²
- 17.75 cm²
- 19.00 cm²
- 18.84 cm²
Q16: What is the formula for area of the segment of a circle?
- Area of the sector - Area of the triangle
- Area of the circle
- Area of the sector
- Area of the triangle Area of the sector
Q17: What is the area of the circle, if the circumference of the circle is 44 cm?
- 128 cm²
- 130 cm²
- 154 cm²
- 129 cm²
Q18: What is the area of the irregular surfaces?
- 2600 unit²
- 2590 unit²
- 2625 unit²
- 2620 unit²
Q19: What is the area of the irregular surfaces?
- 4200 unit²
- 4300 unit²
- 4500 unit²
- 4400 unit²
Q20: What is the radius of the circle if the angle of sector is 90° and the area of the circle is 196 cm²?
- 15.77 cm
- 15 cm
- 14.85 cm
- 14.95 cm
Q21: What is the formula for perimeter of a sector?
- 2l + r
- l + 2r
- πr²
- 2πr
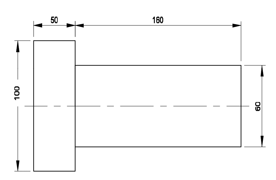
Q22: What is the area of conical object?
- 5100 mm²
- 5120 mm²
- 5125 mm²
- 5158.8 mm²
Q23: What is the area of the lamina?
- 14,800 mm²
- 14,600 mm²
- 14,650 mm²
- 14,750 mm²
Q24: What is the area of the sector, whose diameter is 40 mm and angle is 120°?
- 418.66 mm²
- 400.50 mm²
- 415.5 mm²
- 416.6 mm²
Q25: What is the length of arc of a sector, whose radius is 15 cm and angle is 40°?
- 9.75 cm
- 9.8 cm
- 10.60 cm
- 10.4 cm
Q26: What is the length of arc of a sector whose radius is 3.6 cm and angle is 36°?
- 2.10 cm
- 2.26 cm
- 22.6 cm
- 2.36 cm
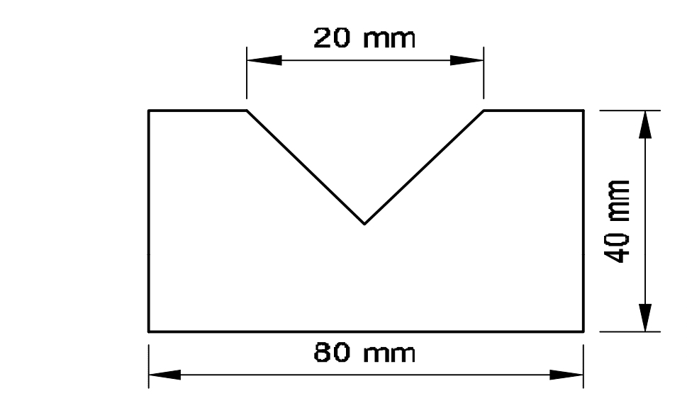
Q27: What is the area of the surface?
- 1750 mm²
- 1775 mm²
- 1805 mm²
- 2600 mm²
Q28: What is the name of the shaded portion?
- Segment
- Sector
- Arc
- Chord
Q29: Which line is called as chord?
- ED
- AB
- OD
- OE
Q30: What is the area of the circle, whose diameter is 50 cm?
- 1900 cm²
- 1950 cm²
- 1962.5 cm²
- 1960 cm²
Q31: What is the name of the region of a circle between any two point on the circumference?
- Arc
- Segment
- Sector
- Chord
Q32: What is the radius of the circle, whose circumference is 440 cm?
- 71.5 cm
- 70 cm
- 70.5 cm
- 72.2 cm
Q33: What is the area of a circular surface if the radius is 14 cm?
- 615.44 cm²
- 614.5 cm²
- 612.25 cm²
- 612.44 cm²
Q34: What is the circumference of a circle whose diameter is 7 cm?
- 22 cm
- 44 cm
- 25 cm
- 21 cm
Q35: What is the radius of a circle whose diameter is 44 cm?
- 44 cm
- 22 cm
- 23 cm
- 20 cm
Q36: What is the diameter of the circle, if the area of the circle is 78.5 cm² ?
- 5 cm
- 10 cm
- 15 cm
- 5.5 cm
Q37: What is the area of the circle if the radius is 10cm?
- 314 cm²
- 31.4 cm²
- 30.4 cm²
- 3.14 cm²
Q38: What is the radius of the semicircle, if the circumference of the semicirle is 28.26 cm?
- 5.49 cm
- 6.49 cm
- 8.5 cm
- 8.75 cm
Q39: What is the diameter of the semicircle, if the circumference of the semicircle is 21.98 cm?
- 8.55 cm
- 8 cm
- 7.55 cm
- 7 cm
Q40: What is the area of the semicircle, if the diameter is 14 cm?
- 70 cm²
- 76.93 cm²
- 75.06 cm²
- 86.93 cm²
Q41: What is the diameter of the circle, if the area of the circle is 706.5 cm² ?
- 29 cm
- 29.5 cm
- 30 cm
- 30.5 cm
Q42: What is the diameter of the circle, if the circumference is 31.4 cm?
- 5 cm
- 10 cm
- 8 cm
- 8.5 cm
Q43: What is the area of the lamina?
- 1470.55 cm²
- 1473.66 cm²
- 1472 cm²
- 1472.5 cm²
Q44: What is the area of the irregular lamina?
- 550 cm²
- 549.76 cm²
- 560 cm²
- 555 cm²
Q45: What is the area of the lamina?
- 125.5 cm²
- 120.5 cm²
- 127.5 cm²
- 126.5 cm²
Q46: What is the area of irregular surfaces?
- 27,475 mm²
- 27,500 mm²
- 27,350 mm²
- 26,500 mm²
Q47: What is the area of shaded portion whose OD = 38 mm. ID = 32 mm?
- 325.4 mm²
- 329.7 mm²
- 305.5 mm²
- 320.5 mm²
Q48: What is the area of irregular surfaces whose equilateral triangle size is 20 mm?
- 3000 mm²
- 3080 mm²
- 3026.8 mm²
- 3060 mm²
Q49: What is the area of shaded portion. Whose square size 300mm?
- 58,000 mm²
- 58,400 mm²
- 59,000 mm²
- 58,600 mm²
Q50: What is the area of shaded portion?
- 1000 mm²
- 1500 mm²
- 1100 mm²
- 1075 mm²
Found a mistake or mismatch in the question or answer? Let us know via email.
This post is licensed under CC BY 4.0 by the author.
























