Estimation and Costing
Workshop Calculation and Science, Module-6
Estimation and Costing
⭕️ Show all Answers
Q1: What is the other term used for reference table?
- Dictionary
- Biography
- Bibliography
- Information table
Q2: Which hand book referred by machine engineer?
- Parry's cheorikal
- CRC
- Mark standard
- Oxford Dictionary
Q3: What is a hand book?
- Model book of various works
- Type of reference work or other collection of instruction.
- Design book of latest works
- Dictionary of materials
Q4: Which standard schedule of rates to be considered for estimation?
- Standard schedule of rates of the last year
- Standard schedule of rates of the average of the last 10 years
- Standard schedule of rates of the average of last 5 years
- Standard schedule of rates of the current year
Q5: What is a over estimate?
- When an estimate is exceeded to actual estimate
- When an estimate is fell short of the actual estimate
- When an estimate perfectly matches the actual estimate
- No work started as per estimate
Q6: What is a under estimate?
- No work started as per estimate
- An estimate perfectly matches with actual
- An estimate is fell short of the actual estimate
- An estimate is exceeded the actual estimate
Q7: What is the term used for the method of calculating various quantities and expenditure on a particular job or process?
- Estimation
- Drawing
- Specification
- Plan
Q8: What is the main factor to be considered while preparing a detailed estimate?
- Shape of material
- Brand of the materials
- Quantity, availability and transportation of materials
- Location of material
Q9: Which authority publishes schedule of rates?
- Individual
- Corporate
- Partnership firm
- Government department
Q10: What is the name of a booklet, the rates of various terms are indicated?
- Price bank
- Price bunch
- Price tag
- Price catalogue
Q11: What is the term, for the details of materials, brand name, grade of quality, rating of current and voltage etc.?
- Drawing
- Specification of materials
- Raw materials
- Price catalogue
Q12: What is the use of engineering drawing?
- For estimation of material and execution of work
- For colourful appearance
- For reducing the cost
- For increasing the cost
Q13: What is the other term of pocket reference in engineering works?
- Hand tool
- Hand book
- Good book
- New book
Q14: Which one is related to estimation of work?
- Bill of material
- Packing
- Information table
- Hand book
Q15: What is a total cost?
- Raw material cost only
- Machining cost only
- Raw materials cost and machining cost
- Advertisement cost only
Q16: Who prepares the cost of estimation?
- Operator
- Quality Inspector
- Estimator
- Draughts man
Q17: Which one is included in machining estimation sheet?
- Transport cost
- Advertisement cost
- Raw material cost
- Tax
Q18: What is the minimum permissible size of aluminium wire used in estimation?
- 1.5 sq.mm
- 2.5 sq.mm
- 5 sq.mm
- 3.5 sq.mm
Q19: What is the minimum permissible area of conductor (U/G cable) for three and half cores cable?
- 25 sq.mm
- 50 sq.mm
- 5 sq.mm
- 100 sq.mm
Q20: Which one is the most reliable estimate?
- Priliminary estimate
- Plinth area estimate
- Cube rate estimate
- Detailed estimate
Q21: Which IE rules are to be verified on completion of wiring on any new installation?
- IE Rules, 1956
- IE Rules, 1960
- IE Rules, 1961
- IE Rules, 1967
Q22: What describes the detailed specification for the item of work?
- Quality, Quantity, Workmanship, Method of execution
- Colour
- Tax, Transport, Overhead expenses
- Maintenance, Stock, Cost
Q23: Which of the impurity in cast iron makes it hard and brittle?
- Silicon
- Sulphur
- Maganese
- Phosphorus
Q24: What cables are used for 132KV lines?
- High tension
- Super tension
- Extra high tension
- Extra super voltage
Q25: Which specification is other than general specification?
- Brief specification
- Bulk specification
- Detailed specification
- Main specification
Q26: What percentage of water absorbed by a good building stone?
- Less than 10%
- Less than 20%
- Less than 8%
- Less than 5%
Q27: What is the relative permitivity of rubber?
- Between 2 and 3
- Between 5 and 6
- Between 8 and 10
- Between 12 and 14
Q28: What is the weight of the iron ball has volume of 250 cc and density 7.5 gm/cc?
- 1750 gram
- 1875 gram
- 1975 gram
- 1785 gram
Q29: What is the weight of a rectangular block of a cost iron of 250cm X 20cm X 8cm (density of cast iron is 7.8 gm/cm³)?
- 312 kg
- 372 kg
- 410 kg
- 525 kg
Q30: What is the total estimation cost for making the component of 8 drilled hole dia 10 mm and 4 Numbers of M6 taps in the plate, if Rs.8/- per drilled holes and Rs.12 per drill and tap?
- Rs.102
- Rs.100
- Rs.112
- Rs.110
Q31: What is the estimation of milling cost of a rectangular block size 100 X 80 X 60 mm, if cost of the milling is Rs.2/sq.cm?
- Rs.652/-
- Rs.752/-
- Rs.572/-
- Rs.960/-
Q32: What is the total wattage in a room if 2 tube lights of 50W rating, 2 fans of 80W rating, 2 numbers of light points of 60W rating, one fan point of 60W rating and one 3 pin socket of 100W rating?
- 340 W
- 440 W
- 540 W
- 640 W
Q33: What is the total labour charges for a particular wiring work completed in 2 days by one electrician and one helper. (Electrician @ 800/day and helper 400/day)
- Rs. 2000
- Rs. 2400
- Rs. 3000
- Rs. 1400
Q34: What is the total cost of painting of a class room including ceiling, if the size of length is 6m, breadth is 5m and height is 4m. (Painting + labour cost Rs.150/- per sq.m)
- Rs.15000/-
- Rs. 16700/-
- Rs.17700/-
- Rs.18700/-
Q35: What is the total cost to assemble 10 personal computer systems, spares cost as given for one system: 1 TB hard disc Rs.4500/-, Intel i3 mother board Rs.7000/-, SMPS Rs.2500/-, monitor Rs.6000/-, keyboard Rs. 1000/- other material cost (Switches, USB, Cables etc.,) Rs.6500/-?
- Rs.275000/-
- Rs.250000/-
- Rs.225000/-
- Rs.265000/-
Q36: What is the total construction cost of a house construction area of 3000 sq.ft. (cost of construction Rs.2000/- per sq.ft including material and labour)?
- Rs.30,000,000
- Rs.60,00,000
- Rs.6,00,000
- Rs. 60,000
Q37: What is the total cost of Air-conditioners installed in a college, 40 class room-each 1 Air-conditioner, Computer lab 5 Air-conditioners and conference hall 5 Air-conditioners (Cost of one air conditioner Rs.30000/- including installation)?
- Rs. 10 lakhs
- Rs. 20 lakhs
- Rs. 12 lakhs
- Rs. 15 lakhs
Q38: What is the total estimation cost for mandrel, if density is 7.8 gm/cm³ and material cost is Rs.240 per kg?
- Rs.156/-
- Rs.216/-
- Rs.168/-
- Rs.180/-
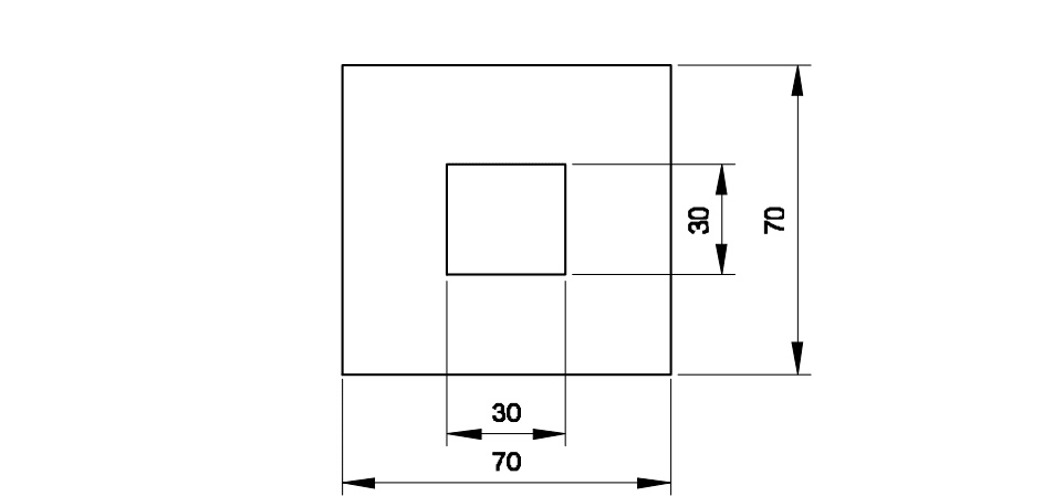
Q39: What is the estimation of labour charge for making inside square of size 30 X 30 mm, if making charge Rs.500/10cm²?
- Rs.500/-
- Rs.450/-
- Rs.350/-
- Rs.400/-
Found a mistake or mismatch in the question or answer? Let us know via email.
This post is licensed under CC BY 4.0 by the author.



